The Greenhouse is a 10 storey, mixed use development located on the city fringe in Ponsonby, Auckland. It has a commercial / retail ground floor with apartments above. A large penthouse with a glasshouse above occupies the top part of the building. The Greenhouse’s architects, Ockham Residential, say the building is inspired by the natural environment of Auckland, its West coast in particular, thus giving the building an “Aotearoa aesthetic”. The building derives its name from the distinctive, green-glazed brick which is used as The Greenhouse’s primary cladding material.
The Greenhouse
This case study was created in partnership with Ockham Residential.
Key attributes:
This development stands on a corner site in the midst of the lively retail, residential and hospitality area of Ponsonby. The design and commercial uses on the ground floor provide an active frontage on two streets. The overall design of the building’s vertical form, most notably the tapering of the top two storeys, helps to integrate this taller apartment building with the generally lower scale buildings in the immediate vicinity.
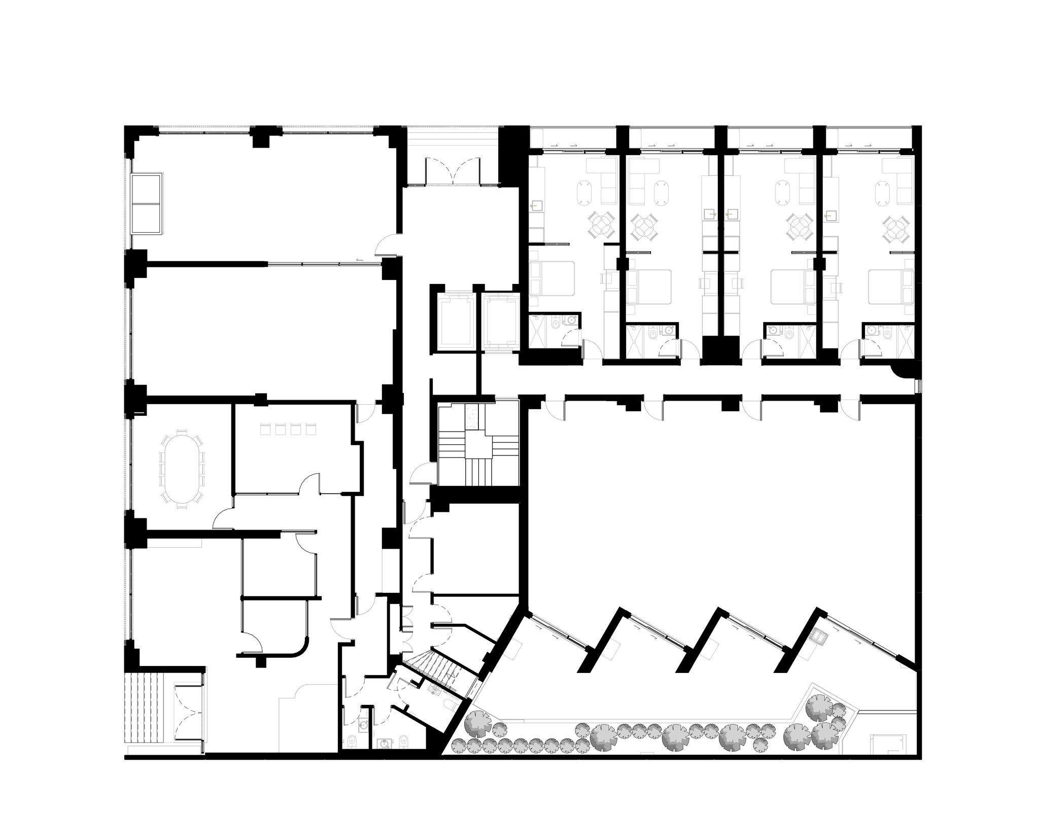
In keeping with Ockham’s earlier developments, the Greenhouse provides much-needed high quality dwellings in walking distance of the city centre and within the Ponsonby town centre with all of its amenities and public transport choices. Apartments are predominantly studios and two-bedroom units. The ground, mezzanine and first floors are mainly given over to studio units that are managed as short term/commercial lets.
Location/ whenua
The Greenhouse is located near the top of Williamson Ave, in Ponsonby, an inner-city suburb of Auckland, New Zealand. Ponsonby Road is one of Auckland’s most popular and lively streets for shops, restaurants, cafes and nightlife.
Historically, the intersection of Ponsonby and Karangahape Roads was known as the Te Rimu Tahi ridge (lone Rimu tree). Two merging gullies ran downhill to the sea, with the Tuna Mau (to catch eels) stream running through Western Park, which is located very close to The Greenhouse just across Ponsonby Road.
Māori map of Te Rimu Tahi area which shows the Ponsonby ridgeline
Along with Western Park, the largest open space near The Greenhouse, there are schools and other necessary community facilities and services, as well as retail and hospitality businesses, within a short distance of the site. Buses run along Ponsonby Road providing access to the city centre and wider suburbs.
Planning context
Auckland plan 2050
The Auckland Plan 2050 sets the direction for how Auckland will grow and develop over the next 30 years. It responds to the key challenges we face today – high population growth, sharing prosperity among all Aucklanders, and reducing environmental damage. To address these challenges, the plan identifies six outcomes that will deliver a better Auckland:
- Belonging and Participation
- Māori Identity and Wellbeing
- Homes and Places
- Transport and Access
- Environment and Cultural Heritage
- Opportunity and Prosperity
The Greenhouse addresses the following Auckland Plan 2050 outcomes:
- Homes and places – Specifically Direction 1: Develop a quality compact urban form to accommodate Auckland's growth and support a low carbon future
- Transport and Access – locating development where there is employment and good transport helps to reduce car reliance and carbon emissions.
Unitary plan Chapter H - Zones:
Building Height
- A Height Variation Control (HVC) allows for building heights of up to 27m in this area. The Greenhouse height is 37m. Cognisant of the over-height nature of the building, building design measures were used to manage the infringement. In-depth Landscape and Visual and shading studies were also undertaken.
Building setbacks at upper floors
- The 6m setback at upper floors standard was infringed, with four smaller setbacks and a stepped response provided rather than one 6m setback.
- The purpose of these two standards is to manage height, allow daylight and sunlight access, and to manage visual dominance effects. The high standard of design, the stepped building form and the existing topographical context resulted in the building being considered acceptable from a planning and urban design perspective.
Outlook space
- Some west and north facing apartments minorly infringe the Principal living room outlook standard due to overlapping outlooks. The Outlook infringements were considered acceptable as there were no issues with visual privacy and the use of angled windows maximised sunlight and views.
Outdoor living spaces
- The Business Mixed Use zone does not require communal or private outdoor spaces.
- There is a communal courtyard on the ground floor and a residents’ lounge on the first floor for use by all. There is also a large private outdoor space on the rooftop. Several studios do not have balconies, with well-designed internal design compensating for this. All larger apartments have balconies.
Auckland Unitary Plan standards applied to residential zones.
The Greenhouse apartments aerial with surroundings.