The six terraced houses at Buckley Avenue are part of a wider masterplanned development at Hobsonville Point. The redevelopment of the old air base is intended to become a mixed use urban village which will incorporate schools, shops, a marine industrial precinct and a wide range of house types. The housing has been developed as a large series of blocks called ‘super-lots’ which have been sold by the Hobsonville Land Company (HLC) to four separate building companies.
Buckley terraces
The six terraced houses at Buckley Avenue are part of a wider masterplanned development at Hobsonville Point. The redevelopment of the old air base is intended to become a mixed use urban village which will incorporate schools, shops, a marine industrial precinct and a wide range of house types.
In 2010 Universal Homes purchased 13,000m2 from the HLC to develop a range of 3 and 4 bed houses. A key driver was to ensure the delivery of high quality houses, that are visually appealing, provide variety in the streetscape, but still have a visual coherence with their neighbour.
The properties on 59-64 Buckley Avenue have been designed as energy efficient, low maintenance houses for a young family, or for older ‘empty nesters’ who have sold their existing house.
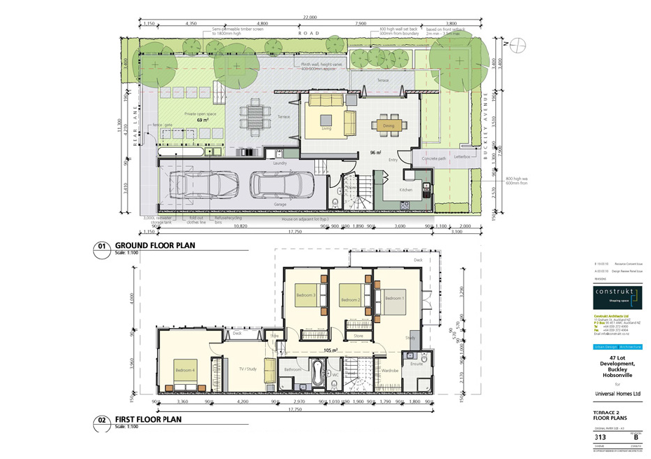
The terraces comprise of two corner units and four courtyard houses.
Project information
- Rohe/ Location: Hobsonville Point
- Project Type: Six terraced homes with rear lane parking
- Date of Completion: 2006
- Owner/Developer: Universal homes
- Architecture/Urban Design: Construkt

Good terraced house development that creates an excellent edge to the street while accommodating the car via rear lane access.