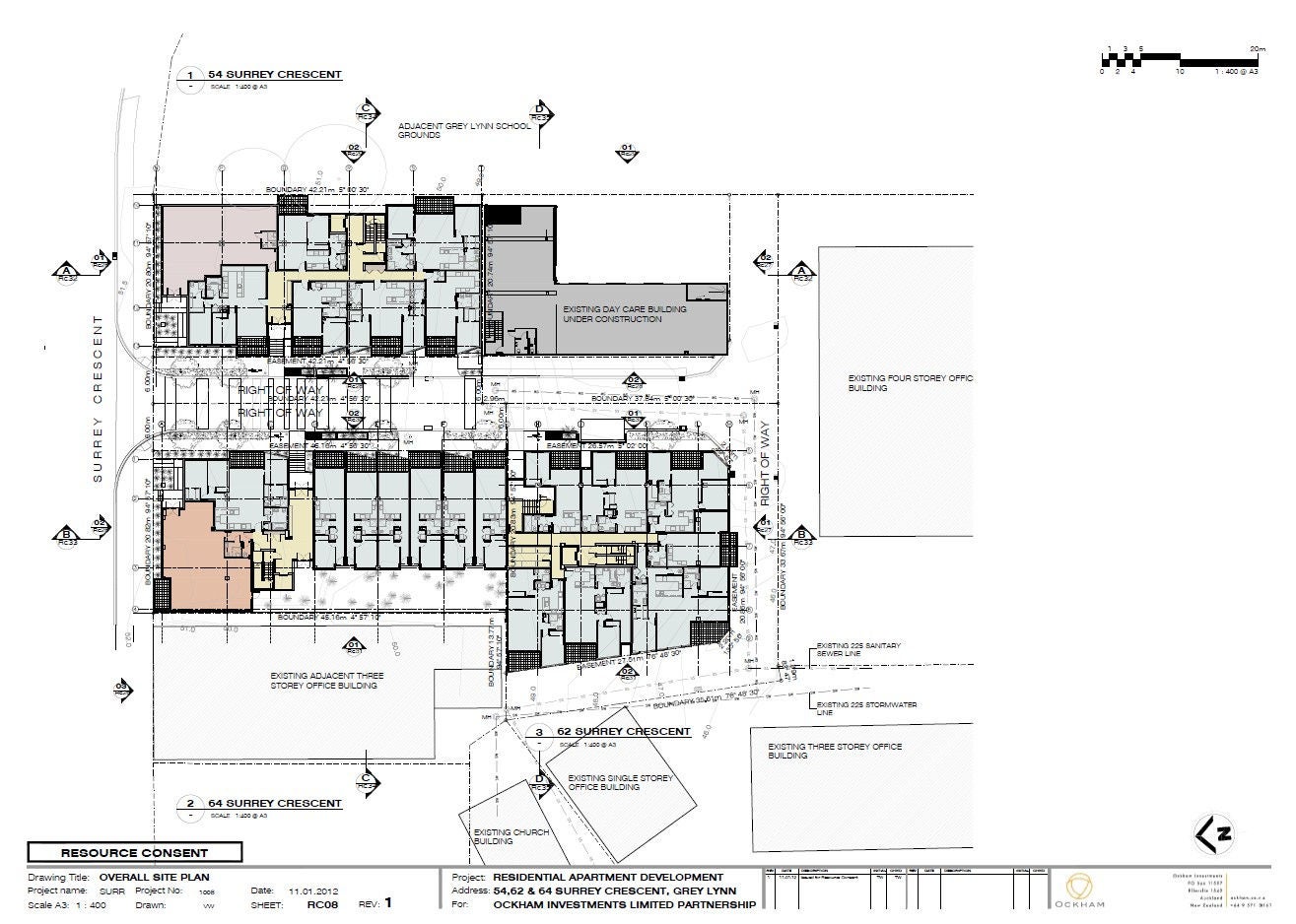
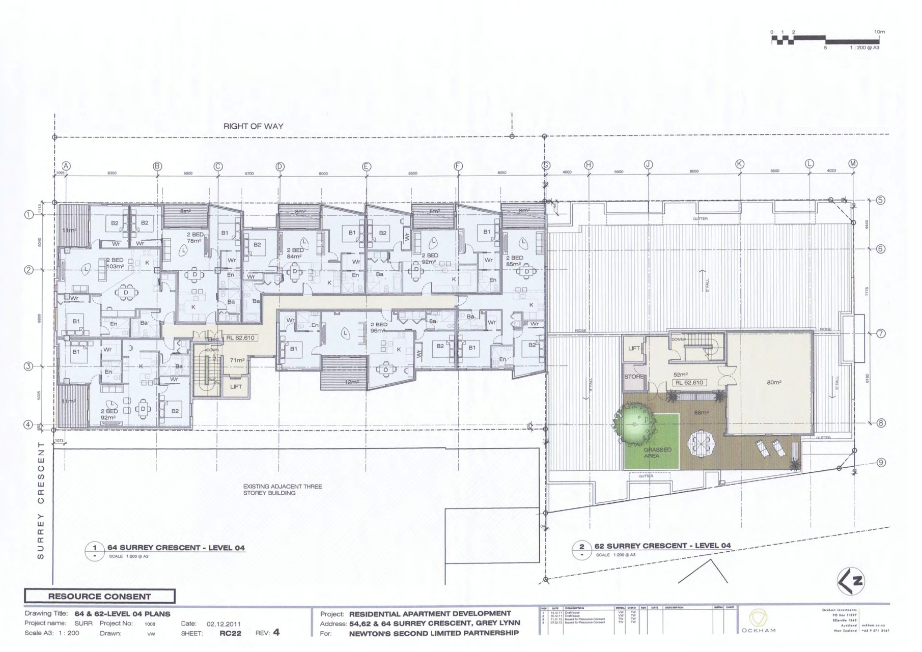
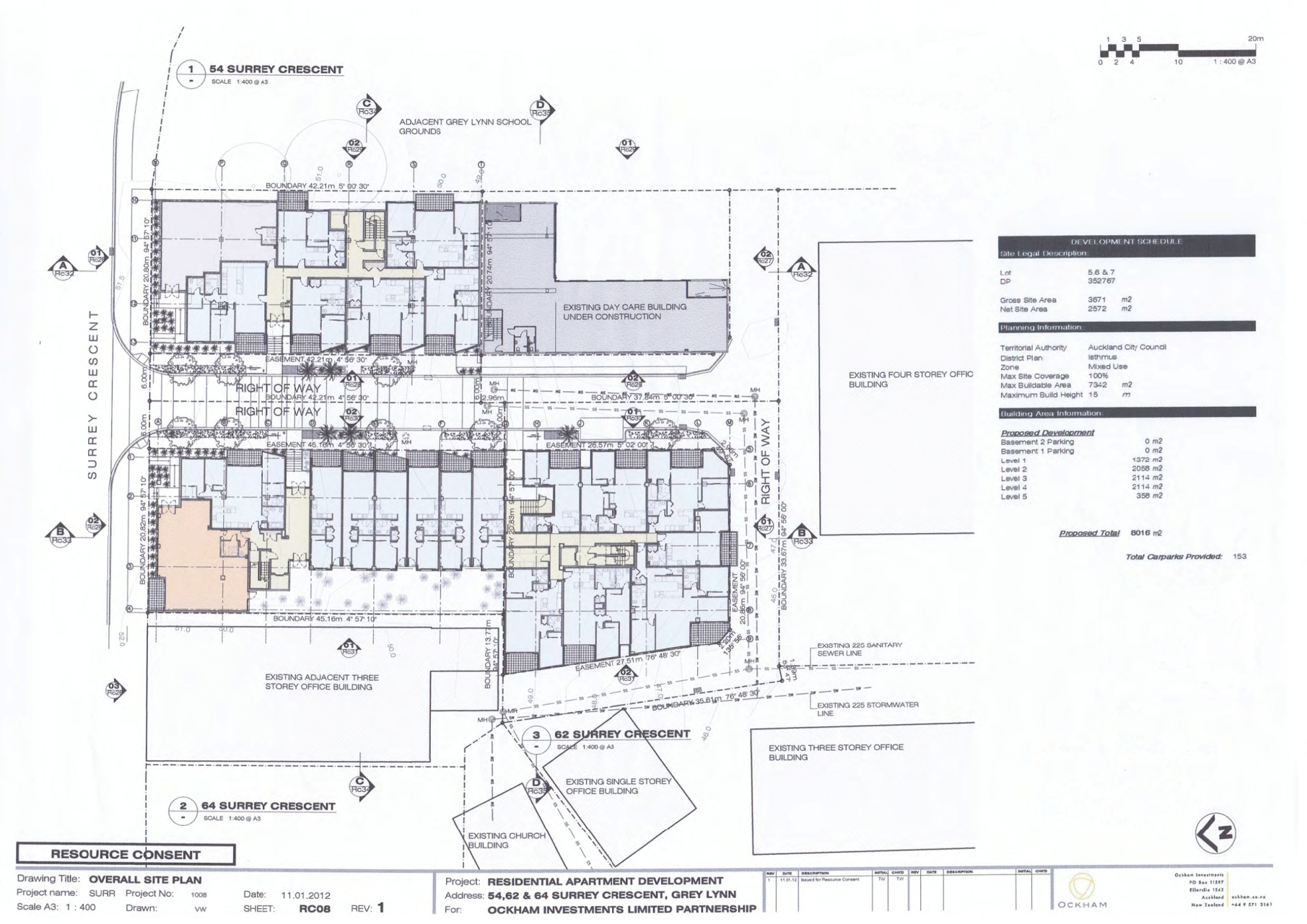
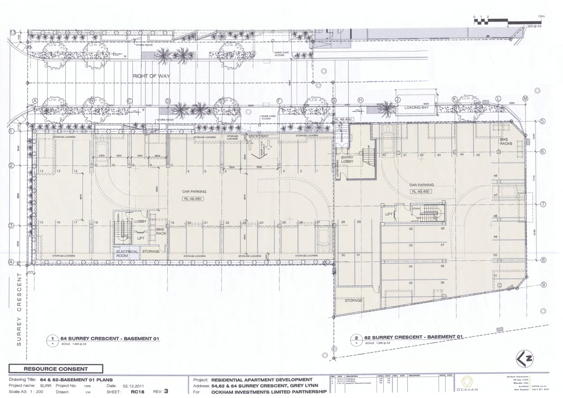
The Isaac is a contemporary apartment development in the city fringe suburb of Grey Lynn. There are 75 apartments of a range of sizes as well as two commercial tenancies on the ground level.
The Isaac apartments
The development is within walking distance of West Lynn Village, the Grey Lynn shops and the local school is right next door. The site is well linked to the city centre and other city fringe locations. The street facing site faces a listed heritage building and many other character villas which surround the site. Regional connections are good and the development is well connected to the road network and bus service.
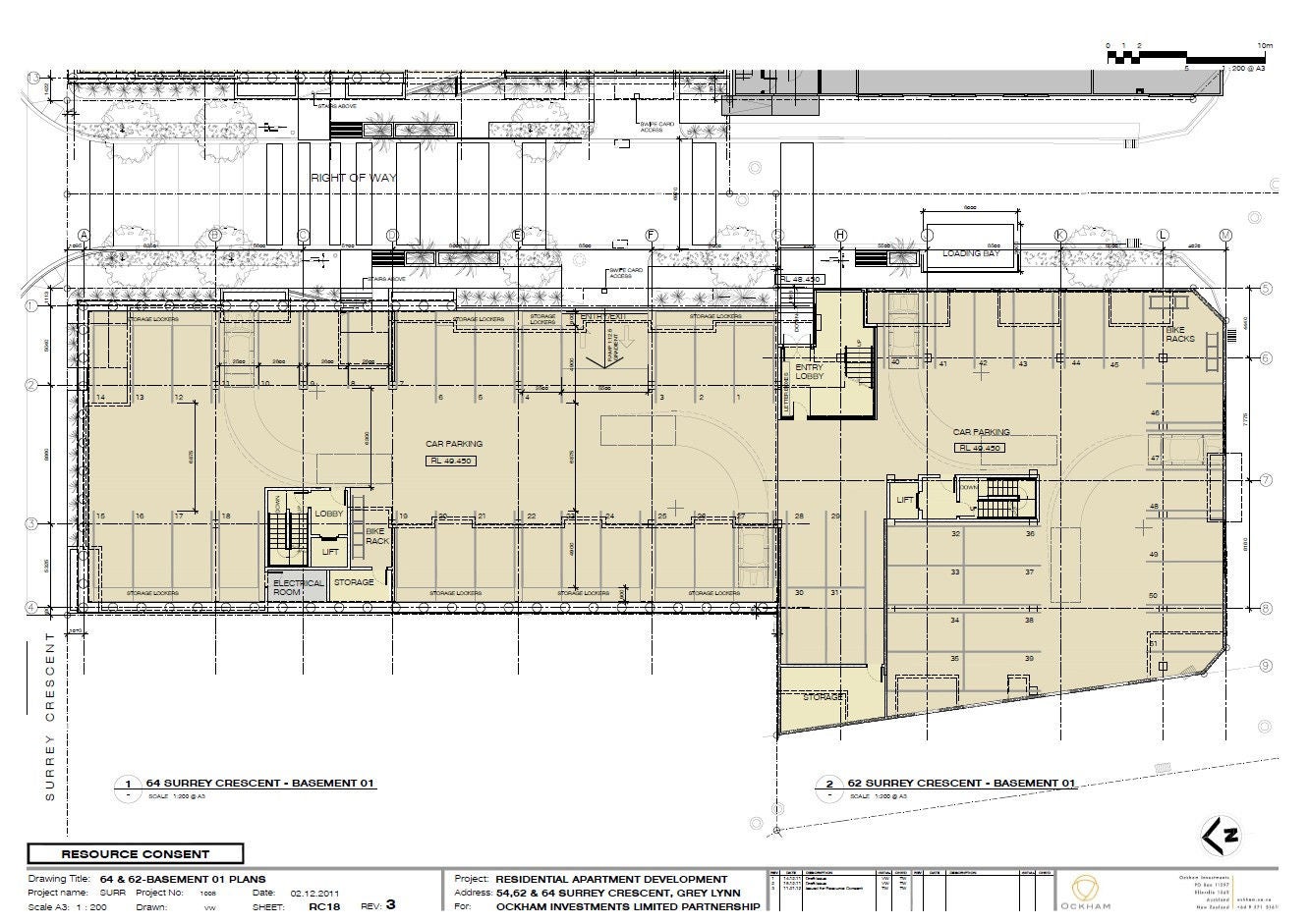
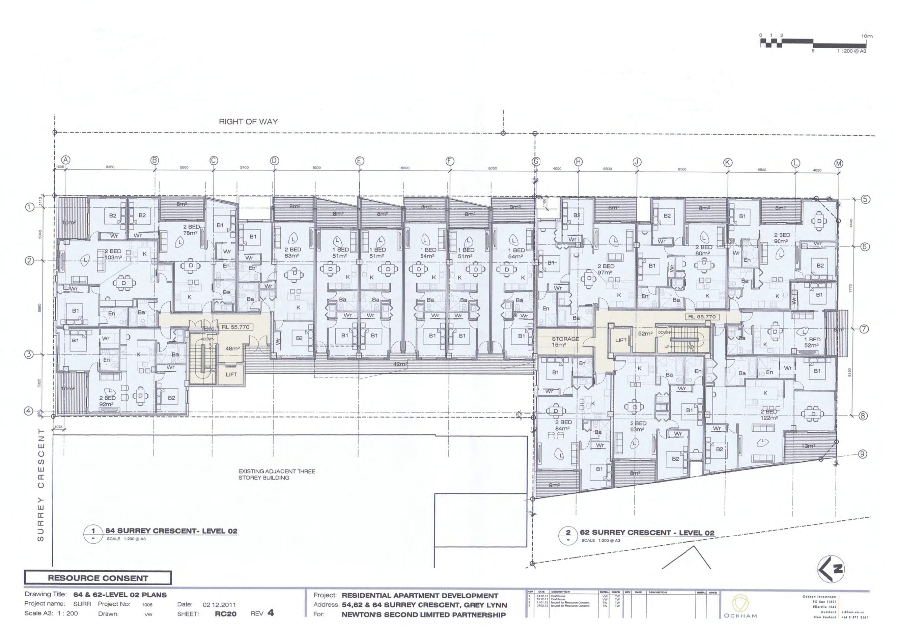
The three buildings are designed to address Surrey Crescent – with two commercial tenancies providing an active edge to the street – and the internal lane. This is designed to be a high amenity, walkable space which provides an outlook area for the apartments, as well as access to the car parking.
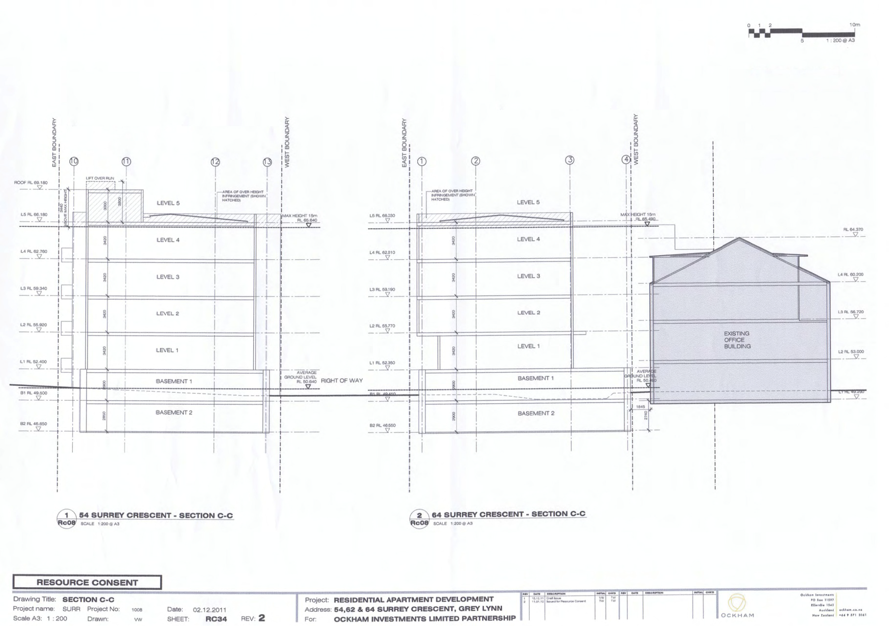
The site slopes down from Surrey Crescent, and a major selling point of the buildings are the large, landscaped roof top terraces and associated communal facilities. All residents can gain access to the panoramic 360 degree views over Auckland, including views of the harbour, Waitakere Ranges, and the volcanoes and houses of the inner suburbs. The height on the lower building was limited to ensure that the buildings closer to Surrey Crescent could still see over the top.
The design is influenced by the work of Sir Isaac Newton – in particular his work in optics. The detailing on the pre-cast panels on the front of the building references light interference patterns. This theme has been used as a reference to tie different parts of the design together – and can be seen in the landscape treatment, interior design as well as the front facades of the buildings. As shown here, using an external influence as an inspiration can add richness to the whole project.
The development is a well designed, high quality development that sits well within it’s existing environments, and makes the most of a challenging site.
Project information
- Rohe/ Location: Grey Lynn, Auckland
- Project Type: Apartments
- 75 Apartments
- 2 Commercial tenancies
- Date of Completion: 2013
- Owner/Developer: Ockham Residential
- Architecture/Urban Design: Ockham Residential
