Example of best practice sustainable building design – uses current best practice passive solar design, low impact storm water design, low energy use building systems and onsite energy generation to have zero net overall energy use.
Zero Energy house - Pt Chev
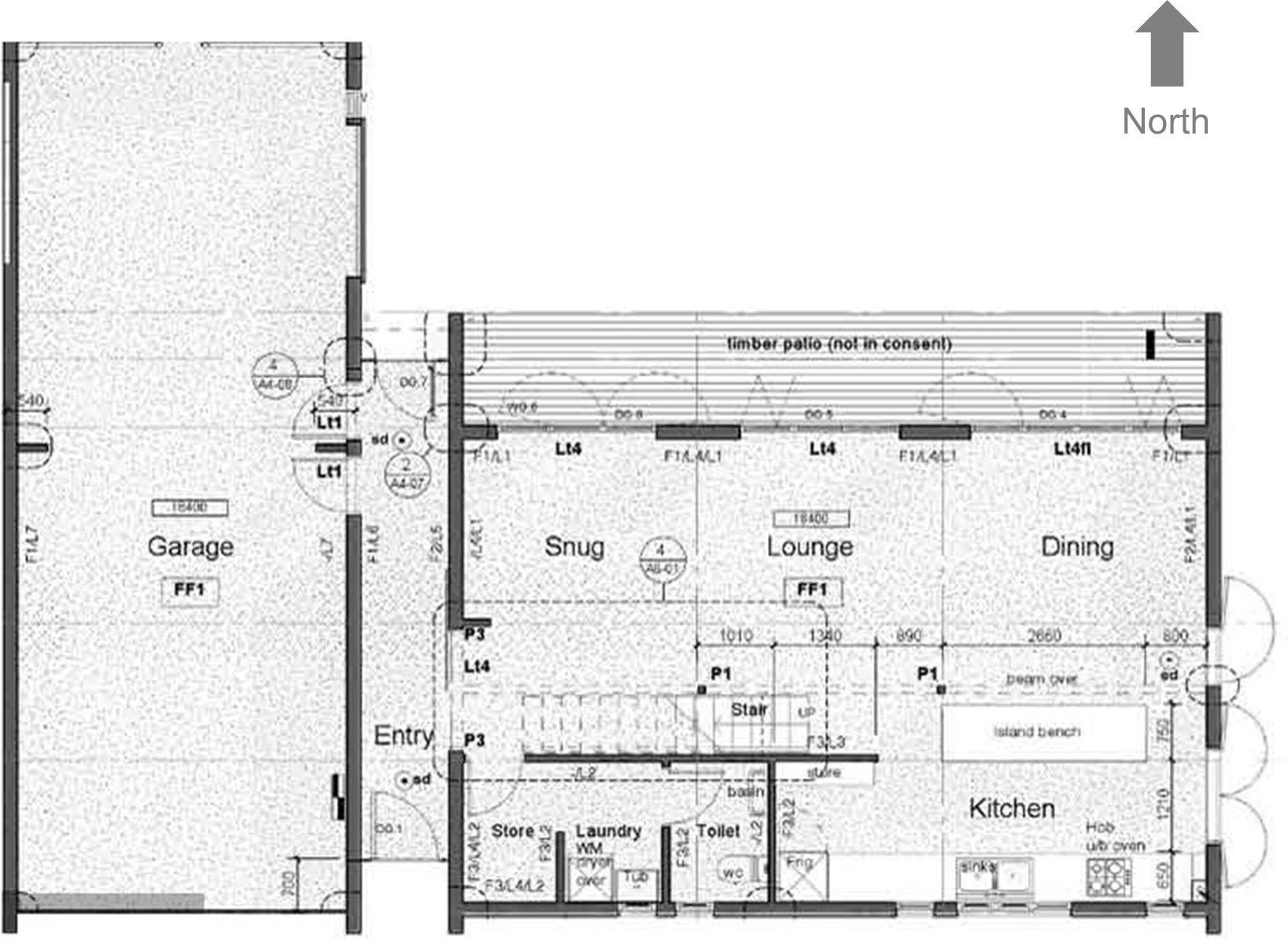
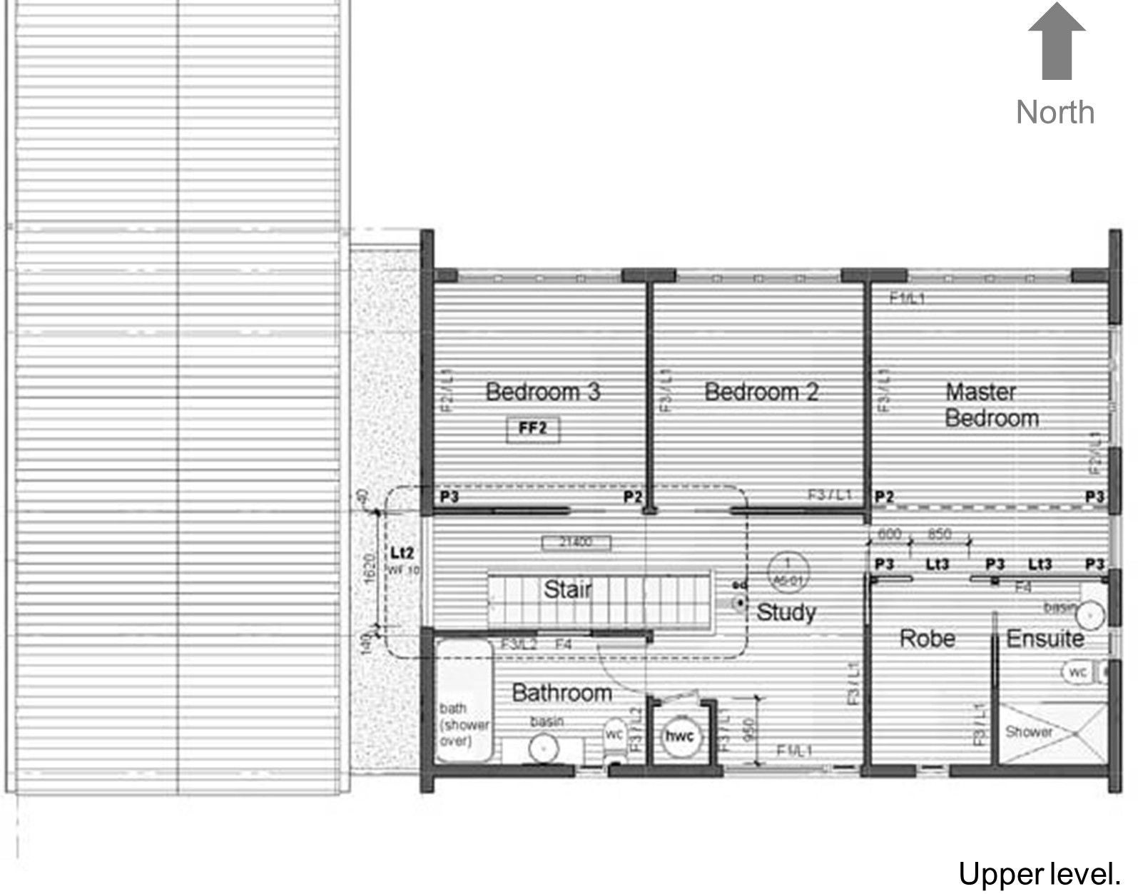
The Zero Energy house is a two storey L-shaped dwelling located in close proximity to the corner of Mao Road and Tui Street, Point Chevalier. The building has been successfully positioned on the site and designed, to maximize its orientation and zero energy potential, without compromising its duty to address the street frontage in a residential area. Tui Street is a low density residential street located in Point Chevalier, a suburb found 6km west of Auckland City. The suburb has excellent accessibility to the town centre amenities, public transport and cycling links, reserves, beaches and forests.
The site was carefully considered and selected with the specific brief of building a case study zero energy home. The site is flat topography and northern aspect has allowed the house to use designed-in passive features, including the provision for a north facing private outdoor space and vegetable garden to the rear. This outdoor space is seen as an extension of the internal living areas which have also been positioned to the northern side of the dwelling.
Key to the design process was employing an ‘integrated design process’ where the engineers have been involved from the outset to enhance the design and zero energy qualities of the proposal, including thorough accurate modelling of various options. The building’s bulk has been well integrated with the existing neighbourhood which consists of a mix of one and two storey dwellings.
Project information
- Rohe/ Location: Auckland Central
- Project Type: Net-zero energy house
- Detached house
- Date of Completion: 2012
- Owner/Developer: Shay Brazier & Jo Woods
- Architecture/Urban Design: A Studio Architects
- Site size: 404 m2
